1. Home
  2. >
  3. Nieuws
  4. >
  5. Open dag Nederlands Instituut voor Ecologie

Open dag Nederlands Instituut voor Ecologie

Zoom in op afbeelding
Naar grootformaat afbeelding

06-09-2011 - Op zaterdag 10 september is het nieuwe gebouw van het Nederlands Instituut voor Ecologie (NIOO-KNAW) in Wageningen te bezichtigen. Het gebouw is ontworpen door Claus en Kaan Architecten.

NIOO te Wageningen (credits: Claus en Kaan Architecten / Sebastian van Damme)

De twee voormalige vestigingen van het Nederlands Instituut voor Ecologie (NIOO-KNAW) in Heteren en Nieuwersluis zijn samengevoegd en ondergebracht in een nieuw gebouw te Wageningen. Het NIOO is het grootste onderzoeksinstituut van de Koninklijke Nederlandse Akademie van Wetenschappen (KNAW).

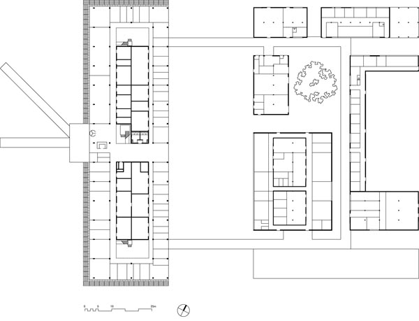
Aan de oostzijde van de campus heeft de Wageningen Universiteit (WUR) voor de nieuwbouw van het instituut ruim vier hectare grond beschikbaar gesteld. Het complex bestaat uit een hoofdgebouw met laboratoria en kantoren en diverse bijgebouwen. Het biedt plaats aan circa 170 medewerkers.

Het hoofdgebouw van het NIOD ligt aan de Mansholtlaan ter hoogte van de Droevendaalsesteeg. Achter dit langwerpig gebouw bevinden zich de diverse bijgebouwen en kassen. Het geheel is een compact complex, laboratoria, kantoren en kassen liggen op korte afstand naast elkaar. De hoofdopzet genereert een overmaat aan ruimte die voor een belangrijk speerpunt van het gebouw staat: de informele ontmoeting. Vides zorgen voor open verbindingen tussen de verdiepingen, licht en lucht. De ruime opzet van de gemeenschappelijke functies als kantine en colloquiumzaal bevorderen een ontspannen en inspirerend werkklimaat.

Een innovatief energetisch concept, gebaseerd op het gedachtegoed van cradle-to-cradle, heeft bijgedragen aan de ambitie van de opdrachtgever om een van de meest duurzame bedrijfsgebouwen van Nederland te realiseren. In het gebouw zijn nieuwe technieken op het gebied van energieopwekking, duurzaam energiegebruik en materiaalkeuze verwerkt.

De open dag is komende zaterdag (10 september) van 11 tot 17 uur in het gebouw van NIOO aan de Droevendaalsesteeg 10 te Wageningen.

© Architectuur.ORG - 1999 - 2026 | info@architectuur.org | RSS-feed | Twitter | LinkedIn | Facebook