1. Home
  2. >
  3. Nieuws
  4. >
  5. West 8 wint competitie woonwijk München

West 8 wint competitie woonwijk München

Zoom in op afbeelding
Naar grootformaat afbeelding
Zoom in op afbeelding
Naar grootformaat afbeelding

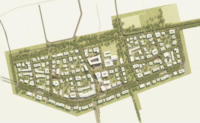
03-10-2011 - West 8 heeft de competitie voor de eerste fase van het stedenbouwkundige en landschapsplan van Freiham Noorden in München gewonnen.

Freiham Nord is de laatste grote ontwikkeling in München en biedt plaats aan ongeveer 10.000 inwoners. In het masterplan is Freiham Nord opgedeeld in verschillende projectgebieden met verschillende programma's. Elk deel is ongeveer 40 hectare groot. De ontwerpwedstrijd waaraan 24 bureaus deelnamen, werd georganiseerd door de stad München en betreft de eerste twee ontwikkelingsgebieden. West 8 ontwerpt gebied A met woningen en een buurtcentrum.

Burgemeester van München, Christian Ude zegt over het ontwerp van West 8 dat het "een aangename levendigheid en diversiteit van de percelen belooft. "

Ortner & Ortner uit Berlijn won het andere deelgebied (gebied A) waar een school en sportcentrum gerealiseerd zullen worden.

© Architectuur.ORG - 1999 - 2026 | info@architectuur.org | RSS-feed | Twitter | LinkedIn | Facebook