1. Home
  2. >
  3. Nieuws
  4. >
  5. OKRA wint prijsvraag in Glostrup-Kopenhagen

OKRA wint prijsvraag in Glostrup-Kopenhagen

Zoom in op afbeelding
Naar grootformaat afbeelding
Zoom in op afbeelding
Naar grootformaat afbeelding
Zoom in op afbeelding
Naar grootformaat afbeelding
Zoom in op afbeelding
Naar grootformaat afbeelding

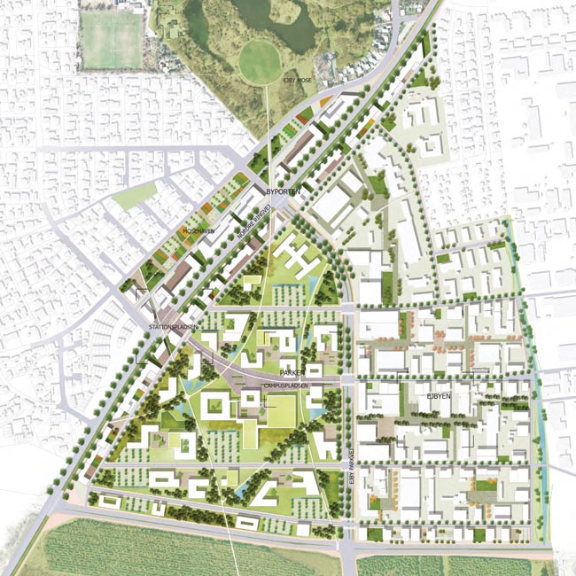
22-01-2013 - OKRA Landschapsarchitecten heeft de competitie voor de Ejby zakenwijk in Glostrup bij Kopenhagen gewonnen.

impressies van de drie deelgebieden en het gehele plangebied (beelden: OKRA)

Samen met de Deense bureaus CCO, ACT en Smith Innovation ontwierp OKRA het plan. OKRA definieerde 3 sterk verschillende deelgebieden: "Byporten", "Parken" en "Ejbyen", zodat in de toekomst een meer dynamische, gevarieerde en aantrekkelijke gebied ontstaat. Een smalle strook in aan de westzijde is bestemd voor verkeer. Dit is afschermt van het huidige erhvervspark met een hoge, groene muur van bomen. Het midden wordt gekenmerkt door groene en open velden en biedt in de toekomst plaats voor verdichting. Aan de oostzijde is een locatie voor een dichtere weefsel van gebouwen.

OKRA zegt over het ontwerp: "Met Ejby Campus zien we een opwindende kans om de zakelijke gebieden van suburbia te herontwerpen. Net als veel van de vergelijkbare zakelijke en industriƫle gebieden aan de rand van de stad Kopenhagen speelt Ejby momenteel een belangrijke rol in het voorzien van economisch aantrekkelijke werkplekken in een toegankelijke, open en groene omgeving. Het feit dat Ejby erhvervspark gestaag is gegroeid sinds de jaren zestig bewijzen dat deze kwaliteiten een stevig fundament zijn voor een gezonde groei."

© Architectuur.ORG - 1999 - 2026 | info@architectuur.org | RSS-feed | Twitter | LinkedIn | Facebook