1. Home
  2. >
  3. Nieuws
  4. >
  5. Corten stalen gevel voor Nederlandse ambassade Rome

Corten stalen gevel voor Nederlandse ambassade Rome

Zoom in op afbeelding
Naar grootformaat afbeelding
Zoom in op afbeelding
Naar grootformaat afbeelding
Zoom in op afbeelding
Naar grootformaat afbeelding
Zoom in op afbeelding
Naar grootformaat afbeelding
Zoom in op afbeelding
Naar grootformaat afbeelding
Zoom in op afbeelding
Naar grootformaat afbeelding

06-05-2007 - De Nederlandse ambassade in Rome wordt 16 mei aanstaande officieel heropend na een ingrijpende renovatie.

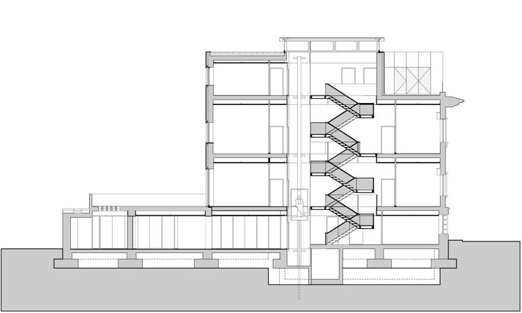
Vlnr. Foto's: Het ambassadegebouw, de centrale hal en de oude situatie. Tekeningen: De begane grond, de zuidgevel en langsdoorsnede.

Naar ontwerp van Cepezed kreeg het complex een geheel nieuw interieur. Bovendien is voor een gedeelte van de ambassade een minimalistisch gedetailleerde corten stalen gevel gerealiseerd. De ingebruikname van het hernieuwde pand wordt luister bijgezet met de aftrap van een Nederlands cultureel festival.

De ambassade was lange tijd gevestigd in een rijk gedecoreerde, in Renaissancestijl gebouwde stadsvilla uit 1929 geflankeerd door een in detaillering stukken minder bijzondere aanbouw van enige decennia later. De uitbreiding en renovatie werd noodzakelijk door verouderde installaties, slechte logistiek en onderhouds- en beheersproblemen.

Het hoofdgebouw is geheel gerestaureerd. Rondom de alledaagse aanbouw ernaast is een schil aangebracht van cortenstaal. Het staal loopt door bij de raamopeningen, maar is daar ten behoeve van uitzicht en daglichttoetreding geperforeerd en voorzien van luiken. Binnen kenden de panden geen bijzondere details. Intern zijn zij daarom tot op het betonskelet gestript en voorzien van een nieuwe, drastisch herziene organisatie gericht op licht, transparantie en een goede onderlinge communicatie. De twee bouwdelen zijn daarbij tot één geheel gesmeed, waardoor in het interieur nauwelijks nog verschil tussen de beide panden is op te merken.

Ter bevordering van een herkenbare logistiek heeft iedere verdieping eenzelfde indeling gekregen. Op alle etages zijn de kantoren, werkplekken en vergaderzalen nu gegroepeerd rondom een centrale verkeers- en verblijfruimte. De binnenwanden tussen de kantoren en de centrale ruimten zijn uitgevoerd in translucent glas. Ook de trappen zijn grotendeels van translucent glas, terwijl de lift geheel transparant is uitgevoerd. De lift en trappen zijn overkapt met een transparant dak, waardoor daglicht doordringt tot op de begane grond.

In het interieur van de vernieuwde ambassade is veel moderne kunst van Nederlandse bodem opgenomen. De collectie huisvest onder meer werken van Jan Cremer, Jan Dibbets, Louis Copier, Carel Willink, Aline Thomassen, Fons Brasser, Charlotte Dumas en Hannes Wallrafen. Buiten wordt het pand "bewaakt" door het kunstwerk met twee keramische honden Cave canem uit 1993 van de kunstenaars Irene Fortuyn en Robert O'Brien.

Projectgegevens Ambassade Rome: Ministerie van Buitenlandse Zaken, Dienst Huisvesting Buitenland (DHB) / Ontwerp cepezed (2005 - 2007) / Interieur: cepezed i.s.m. Olav van den Brekel, DHB / Constructeur: DHV / Technische installaties: Mark Blankestijn i.s.m. De Blaay van den Bogaard Rotterdam / Aannemer: Alba Costruzioni / Brutovloeroppervlakte: 1.300 m² / Kosten: 3,5 miljoen euro.

© Architectuur.ORG - 1999 - 2026 | info@architectuur.org | RSS-feed | Twitter | LinkedIn | Facebook