1. Home
  2. >
  3. Nieuws
  4. >
  5. Fusionarchitectuur van WAM in Zaandam

Fusionarchitectuur van WAM in Zaandam

Zoom in op afbeelding
Naar grootformaat afbeelding
Zoom in op afbeelding
Naar grootformaat afbeelding
Zoom in op afbeelding
Naar grootformaat afbeelding

23-02-2010 - Het centrum van Zaandam is een opvallend gebouw rijker: het Inntel hotel. Het 39 meter hoge gebouw trekt de aandacht met zijn stapeling van traditionele huizen.

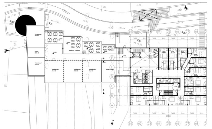
Het Inntell hotel: 2 impressies en een plattegrond van de tweede verdieping. © ontwerp: Molenaar & Van Winden architecten / WAM architecten.

Architect Wilfried van Winden van WAM architecten ontwierp de blikvanger geïnspireerd op de bekende, groene Zaanse huizen, variërend van een notariswoning tot een arbeidershuis. Het hotel wordt vanaf 18 maart aanstaande in gebruik genomen.

Van Winden beschouwt het hotel als een tijdelijk huis. Met de stapeling van huizen verwijst hij naar die tijdelijkheid. Optisch gezien is het gebouw opgetrokken uit een bonte stapeling van bijna zeventig losse huisjes, uitgevoerd in vier kleuren Zaans groen. Het hotel is uniek in de wereld, herkenbaar en toch origineel en eigenwijs. Een ontwerp dat alleen in Zaandam kan worden gemaakt en tegelijkertijd de lokale traditie ontstijgt en vernieuwd. Blikvanger is ‘het Blauwe Huis’, geïnspireerd op het gelijknamige schilderij dat Claude Monet in 1871 in Zaandam schilderde.

Wilfried Van Winden beschrijft het gebouw met de term Fusionarchitectuur: fusion staat volgens hem voor een inventieve wijze van het verbinden van heden met verleden, van traditie met vernieuwing en van high en low culture. Daaruit ontstaat een nieuwe expressie, die beantwoordt aan specifieke lokale gewoonten en tegelijkertijd universeel is. Van Winden: ‘Maar architectuur doet natuurlijk ook een directe aanspraak op het gemoed. Een kennis zei laatst ‘Als ik Zaandam binnenrijd en het gebouw zie staan, verschijnt er onvermijdelijk een glimlach op mijn gezicht’, een mooier compliment kun je niet krijgen’.

Het centrum en het stationsgebied van Zaandam wordt op dit ogenblik ingrijpend veranderd. Het stedenbouwkundige ontwerp ‘Inverdan’ is van het bureau Soeters Van Eldonk architecten. Het plan herstelt het historische stratenpatroon en reconstrueert een gracht in het stadshart van Zaandam. Door de overbouwing van de provinciale weg en het spoor worden bovendien twee stadsdelen ter weerszijde van het spoor met elkaar verbonden.

Het nieuwe hotel is een belangrijke bouwsteen en het eerste opgeleverde gebouw in het plan Inverdan. Het hotel beschikt over 160 kamers en voorziet tevens in een bar-restaurant, een zwembad, een wellnesscentrum en een Finse sauna en Turks stoombad. De vergaderaccommodatie op de tweede verdieping wordt over de provinciale weg gebouwd en naar verwachting in het najaar van 2010 opgeleverd. De vrijwel vierkante hoteltoren is 39 meter hoog en telt twaalf verdiepingen. De gevel – gemaakt van hout en eternit sidings – is expressief, met gevarieerde raampartijen, brede uitbouwen, erkers en sierlijke witte kroonlijsten en windveren.

Projectinformatie: Inntel Hotels Amsterdam-Zaandam / Ontwerp: WAM architecten (Wilfried van Winden) / Aannemer: Heddes Bouw / Ontwerp-oplevering: 2006-2010 / Bruto vloeroppervlak: 7.500 m² / Bruto inhoud: 24.000 m³ / Bouwkosten: 15 miljoen euro.

© Architectuur.ORG - 1999 - 2026 | info@architectuur.org | RSS-feed | Twitter | LinkedIn | Facebook