1. Home
  2. >
  3. Nieuws
  4. >
  5. Start bouw Boekenberg in Spijkenisse

Start bouw Boekenberg in Spijkenisse

Zoom in op afbeelding
Naar grootformaat afbeelding
Zoom in op afbeelding
Naar grootformaat afbeelding
Zoom in op afbeelding
Naar grootformaat afbeelding
Zoom in op afbeelding
Naar grootformaat afbeelding
Zoom in op afbeelding
Naar grootformaat afbeelding
Zoom in op afbeelding
Naar grootformaat afbeelding
Zoom in op afbeelding
Naar grootformaat afbeelding

28-05-2009 - Vandaag werd in Spijkenisse de eerste paal geslagen voor de bouw van de nieuwe Openbare Bibliotheek. MVRDV ontwierp een opvallend gebouw: een boekenberg onder een glazen stolp. Verwacht wordt dat het gebouw in het najaar van 2011 zal worden opgeleverd.

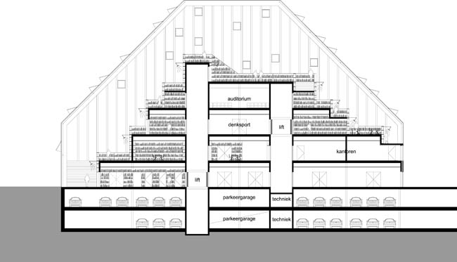
Impressies van de Openbare Bibliotheek Spijkenisse door MVRDV. Onder een dwars- en langsdoorsnede.

De nieuwe bibliotheek met een totale oppervlakte van 10.000 m² is gelegen in het centrum van Spijkenisse en ligt op de hoek van een belangrijke doorgangsweg, het centrale marktplein en het tegenoverliggende kerkgebouw. In aanvulling op de boekencollectie en de leesruimtes, biedt de bibliotheek ruimte aan een commercieel programma, kantoren, een auditorium, vergaderruimtes en een tentoonstellingsruimte. Het uiterlijk van de bibliotheek verwijst, zowel in vorm als in materialisatie - naar een traditionele Hollandse boerderij, een herinnering aan het agrarische verleden van Spijkenisse, dat over de decennia verworden is tot een voorstad van Rotterdam.

De bibliotheek is ontworpen om het lezen te promoten. Door de verschillende programma-onderdelen zoals kantoren, vergaderruimtes en auditorium vertikaal te stapelen, ontstaan er brede terrassen van verschillende groottes waarop de boekenkasten zijn gepositioneerd; samen vormt dit een imposante boekenberg. De terrassen worden door middel van trappen met elkaar verbonden en vormen een doorgaande route om de berg heen naar de top, waarvandaan een panoramisch uitzicht over Spijkenisse wordt geboden.

De boekenberg wordt overkapt door een glazen stolp, waardoor het gevoel ontstaat van een bibliotheek in de openlucht. De stolp is een eenvoudige membraam, een bijna onzichtbare envelop die de scherpe kanten van het gebouw afzwakt. De stolp is ook een klimaatgecontroleerde openbare ruimte. Kassendoek als zonwering en ventilatie zorgen in de zomer voor een aangenaam binnenklimaat. Om het klimaat in de winter te reguleren is er vloerverwarming, individuele verwarmingselementen en dubbele beglazing. Het klimaatsysteem is ontwikkeld in samenwerking met ingenieursbureau Arcadis en werd afgelopen jaar genomineerd voor De Vernufteling, een prijs die jaarlijks wordt toegekend aan een innovatief project van economisch en maatschappelijk belang.

De nieuwe openbare bibliotheek is onderdeel van een groter centrumplan. Om het centrum te versterken en een hogere dichtheid te geven, ontwierp MVRDV naast de openbare bibliotheek een serie appartementsgebouwen. Het gehele plan zal uitgevoerd worden in baksteen, waardoor het bestaande stedelijke weefsel wordt doorgetrokken. Oplevering van de bibliotheek en de appartementen staat gepland voor september 2011.

Het slaan van de eerste paal vond plaats in de aanwezigheid van de wethouders Gert Jan 't Hart en Marjolijne Lewis, en Huub Leenen, directeur van de openbare bibliotheek. Daarnaast waren architect Winy Maas van MVRDV, Jaap Bosselaar en Charif Mounji van Arcadis en de heer Meurs, directeur van bouwbedrijf Vorm Bouw aanwezig.

© Architectuur.ORG - 1999 - 2026 | info@architectuur.org | RSS-feed | Twitter | LinkedIn | Facebook