1. Home
  2. >
  3. Nieuws
  4. >
  5. Grenswerk Poppodium door Van Dongen - Koschuch

Grenswerk Poppodium door Van Dongen - Koschuch

Zoom in op afbeelding
Naar grootformaat afbeelding
Zoom in op afbeelding
Naar grootformaat afbeelding
Zoom in op afbeelding
Naar grootformaat afbeelding
Zoom in op afbeelding
Naar grootformaat afbeelding

01-12-2014 - Grenswerk Poppodium in Venlo is het eerst voltooide gebouw van het in 2012 opgerichte architectenbureau Van Dongen - Koschuch.

Het poppodium Grenswerk is gerealiseerd aan de noordkant van het Venlose centrum, een gebied met overwegend een woonfunctie. Van Dongen-Koschuch liet zich voor het ontwerp van het poppodium inspireren door de pakhuis-typologie.

Het bouwvolume van Grenswerk Poppodium volgt in het bestemmingsplan, een onregelmatig vierzijdig vlak. Het poppodium wordt bekroond door een reeks hellende daken. Van Dongen-Koschuch borduurt hiermee voort op de hellende daken van de aangrenzende bebouwing.

De bijzondere bakstenen gevel versterkt het pakhuis-idee. Deze heeft twee patronen. Een min of meer regelmatig patroon van terugliggende bakstenen vlakken die met raamdorpels en bogen raamopeningen suggereren én een onregelmatig patroon van grote en kleinere ramen die juist iets uitsteken.

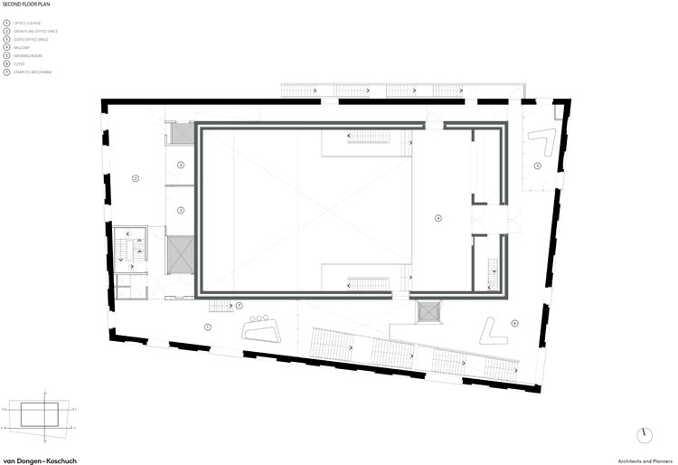
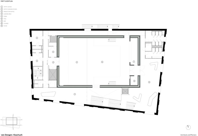
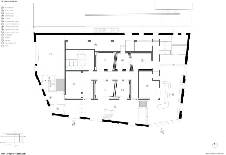
Het poppodium heeft twee verdiepingen. In het hart van het gebouw ligt de zaal met ruimte voor 550 bezoekers. De mooiste ruimte in het gebouw is de foyer die deze zaal verbindt met de hoofdentree en het popcafé op de begane grond. Deze ruimte met trappen en een lift heeft een vide over de volle hoogte van het gebouw en biedt zicht op de oefenruimten en artiestenfoyer.

© Architectuur.ORG - 1999 - 2026 | info@architectuur.org | RSS-feed | Twitter | LinkedIn | Facebook