1. Home
  2. >
  3. Nieuws
  4. >
  5. "Balancerende Balk" van MVRDV voor Living Architecture

"Balancerende Balk" van MVRDV voor Living Architecture

Zoom in op afbeelding
Naar grootformaat afbeelding
Zoom in op afbeelding
Naar grootformaat afbeelding
Zoom in op afbeelding
Naar grootformaat afbeelding
Zoom in op afbeelding
Naar grootformaat afbeelding

09-05-2009 - Living Architecture en MVRDV presenteren het ontwerp voor de Balancing Barn, een vakantiehuis in de buurt van Thorington in Suffolk, Engeland.

Living Architecture, een Britse organisatie die zich inzet voor bijzondere architectuur en architectuur als beleving, gaf de opdracht voor het ontwerp van een reeks opmerkelijke vakantiewoningen in Groot-Brittannië. MVRDV ontwierp een van deze woningen die qua materiaal en uitstraling aansluit bij de uitzonderlijke natuur van de locatie. De woning zal vanaf 2010 te huur zijn.

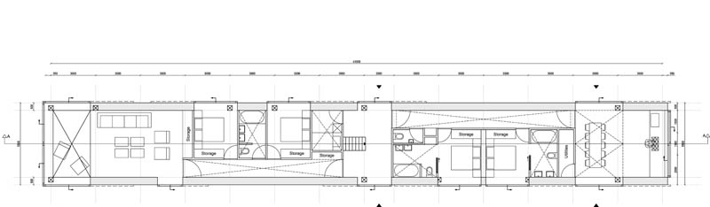
Het huist wordt gebouwd op een mooie locatie op het Engelse platteland nabij Thorington in Suffolk. Vanaf de weg zal het huis zo goed als onzichtbaar zijn. De voorzijde ligt direct aan de lange rechte oprijlaan en is slechts 5,5 meter breed. Het aflopende dak doet denken aan een klein traditioneel plattelandshuisje, maar het volume heeft een lengte van 41 meter. Precies in het midden hangt de woning over een helling, een evenwichtsoefening die mogelijk is door de structuur van het gebouw, die ook zichtbaar in het interieur aanwezig is. Doordat de woning voor 50 procent over de helling hangt, wordt een weids uitzicht geboden over het landschap, het aangrenzende meer en de omliggende tuinen. De lange zijde van het gebouw is goed van de hoofdweg afgeschermd door de vele bomen, waardoor zowel binnen als rondom de woning veel privacy geboden wordt. De gevels zullen uitgevoerd worden in een materiaal dat de omgeving weerspiegelt, waardoor de buitenkant van de woning met de jaargetijden mee verandert.

Binnen in de woning, in het deel het dichtst aan de oprijlaan, worden de keuken, een grote eetkamer en de bijkeuken gesitueerd. Dakramen en grote schuifpuien verbinden het interieur met de tuin. Een serie van vier tweepersoonsslaapkamers met elk een eigen badkamer en toilet volgt. In het midden van de woning wordt de opeenvolging van slaapkamers doorbroken door een trap die toegang biedt naar de tuin, die deels onder de woning ligt. Achter - in het overhangende deel van de woning - bevindt zich de woonkamer. Deze is deels uitgevoerd met een glazen vloer, waardoor goed zicht is op in de tuin spelende kinderen. De schuifpuien en de daklichten in de woonkamer en de slaapkamers verbinden de bewoners met de natuur.

De woning reageert door haar architectuur en techniek op de vorm van de kavel, reageert op de natuur en becommentarieert door middel van de overhangende vorm en de reflecterende gevelmaterialisatie de vorm van de traditionele boerenschuur. Het gebouw wordt medio 2010 opgeleverd en is vanaf dat moment beschikbaar voor verhuur. Andere woningen in de reeks vakantiehuizen op initiatief van Living Architecture zijn ontworpen door Peter Zumthor, Jarmund/Vigsnæs Architects, Nord Architecture en Hopkins Architects.

Living Architecture werd geïnspireerd door de wens om mensen architectuur te laten ervaren door te leven, eten en slapen in ruimtes ontworpen door een gerenommeerd architect. Hoewel er in Engeland verschillende voorbeelden zijn van grootse moderne gebouwen, zijn dit merendeels plaatsen waar men slechts als voorbijganger even verblijft, zoals musea of een vliegveld. De paar moderne woningen die er zijn, zijn particulier bezit en kunnen niet worden bezichtigd. De vakantiewoningen van Living Architecture zullen medio voorjaar 2010 voor verhuur beschikbaar zijn. De woningen kunnen worden geboekt via de website van de organisatie.

© Architectuur.ORG - 1999 - 2026 | info@architectuur.org | RSS-feed | Twitter | LinkedIn | Facebook