1. Home
  2. >
  3. Nieuws
  4. >
  5. Brede school Leidsche Rijn in gebruik genomen

Brede school Leidsche Rijn in gebruik genomen

Zoom in op afbeelding
Naar grootformaat afbeelding

10-01-2006 - Morgen, woensdag 11 januari, opent de door Venhoeven CS ontworpen brede school 't Zand in Leidsche Rijn haar deuren voor de eerste leerlingen.

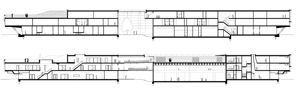
De nieuwbouw huisvest twee basisscholen, twee kinderdagverblijven, een vrijetijdscentrum en buitenschoolse opvang. Een hortus, aula en gymzaal vormen samen het multifunctionele hart van het schoolgebouw en maken het tot een levendig centrum voor de hele buurt. Het is een gebouw voor jong en oud. In april wordt de brede school officieel geopend.

Forum 't Zand is gelegen in een archeologisch park met Romeinse resten, temidden van fruitbomen, oude kassen en romantische overblijfselen uit een recent tuinderverleden. Om de waardevolle ondergrond en de omliggende natuur zo veel mogelijk onaangetast te laten is gekozen voor een compact gebouw. Ruimtes worden meervoudig gebruikt en speelpleinen bevinden zich op het dak.

De architect wil met het gebouw aansluiten bij de ervaringswereld van kinderen die steeds meer gebaseerd is op film, internet en games. In het persbericht van Venhoeven CS wordt gesteld dat de vorm, het materiaalgebruik en de detaillering van de gevel eerder doen denken aan een ruimtevaartuig dan aan een schoolgebouw. Ton Venhoeven vergelijk het gebouw ook met een orka met zijn witte buik en donkergrijze rug.

Forum 't Zand is behalve een educatief gebouw ook een speeltuin, waar je elkaar tegenkomt en waar je met elkaar leert omgaan. Centraal in het gebouw ligt een hal die ontworpen is als een hortus. Het is een lichte, overdekte multifunctionele ruimte waar kinderen, ook als het slecht weer is, kunnen spelen. Op andere tijdstippen is het de ontmoetingsruimte van het vrijetijdscentrum of foyer van de aula. In deze ruimte hangt een aula die uitzicht biedt op de naastgelegen sportzaal. Tijdens festiviteiten kunnen de sporthal en aula worden samengevoegd.

Door het wegschuiven van scheidende wanden tussen speellokalen en verkeersruimte ontstaan desgewenst grote speelpleinen die strategisch liggen ten opzicht van de aanwezige keukens in het gebouw. De speelruimtes van de oudere kinderen zijn direct gekoppeld aan de buitenspeelplaatsen op het dak. De zo ontstane ruimtes dienen voor de tussen- en naschoolse opvang.

De gevel is grotendeels opgebouwd uit geperforeerde aluminium cassetteplaten. In de gevel is LED-verlichting geïntegreerd. Installaties en afvoeren zijn weggewerkt achter de "aluminiumsluier" of ze vormen een vanzelfsprekend onderdeel van het gevel patroon. Naar beneden toe gaat het aluminium naadloos over in een gezeefdrukt hardglas. Veel ramen zijn weggewerkt in het gevelvlak, enkelen steken echter naar binnen of buiten uit.

© Architectuur.ORG - 1999 - 2026 | info@architectuur.org | RSS-feed | Twitter | LinkedIn | Facebook