1. Home
  2. >
  3. Nieuws
  4. >
  5. Afrika Museum in Berg en Dal

Afrika Museum in Berg en Dal

Zoom in op afbeelding
Naar grootformaat afbeelding
Zoom in op afbeelding
Naar grootformaat afbeelding
Zoom in op afbeelding
Naar grootformaat afbeelding

27-06-2006 - Naar ontwerp van Henk de Haan van de Rijksgebouwendienst (Rgd) is Het Afrika Museum te Berg en Dal is uitgebreid. De nieuwbouw omvat 2.375 m² en daarmee is het museum ruim twee keer zo groot geworden.

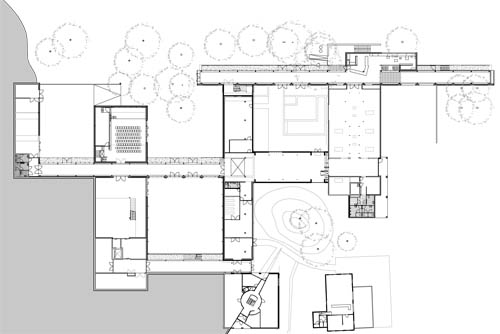
Vlnr. Plattegronden begane grond oud en nieuw en de doorsnede. Afbeeldingen door de Rijksgebouwendienst.

De gerenoveerde oudere bouwdelen bieden ruimte aan uitgebreide semi-permanente tentoonstellingen over Afrika. De nieuwe tentoonstellingszaal wordt gebruikt voor thematentoonstellingen. De bouwkosten bedroegen 4,3 miljoen euro.

Het nieuwe gedeelte bestaat uit een ruime, volledig geconditioneerde tentoonstellingruimte, een auditorium met 150 zitplaatsen, een nieuwe entree met museumwinkel, een royaal multifunctioneel atrium, kantoorruimte met een vergaderzaal, een werkplaats en een ontvangstdepot. In het gerenoveerde gedeelte is door herschikking van functies ruimte ontstaan, onder andere voor een restauratieatelier. Het interieur is ontworpen door Scholten & Baijings uit Amsterdam.

De opening van de nieuwbouw viel vrijwel samen met de viering van het 50 jarig bestaan. De allereerste verzamelingen werden tentoongesteld in Huize Oostermeerwijk, pal tegenover het huidige museum. Deze villa was sinds 1953 in gebruik bij de Spiritijnen, jonge paters die voor de missie werden uitgezonden. In 1958 werd een zelfstandig museumgebouw geopend. Geleidelijk groeide dit uit van missiemuseum tot etnografisch museum met ruime aandacht voor hedendaagse Afrikaanse kunst, waarbij ongeveer iedere 10 jaar een uitbreiding plaatsvond. De voorlaatste uitbreiding, in 1986, betrof de kantoorvilla aan de Postweg. Zo ontstond een museumcomplex in uitlopende stijlen. Rond 2000 lag er opnieuw een omvangrijk programma voor de uitbreiding die onlangs in gebruik is genomen. Deze nieuwbouw is te zien als logisch vervolg op de geleidelijk gegroeide situatie. De oudere bouwdelen zijn opgenomen in een min of meer vanzelfsprekende ruimtelijke structuur, die gebaseerd is op een herhaling van bouwmassa's en tussenruimten in een eenvoudige ritmiek. De historische ontwikkeling van het museum is afleesbaar en tegelijkertijd draagt de nieuwbouw bij aan een hernieuwde interpretatie van de ordening van de oude gedeelten.

Een tweede thema, die de architectuur van het museum bepaalt, naast het rechtdoen aan de historie, is de inbedding in het landschap. Het museumterrein ligt op een noordhelling van de stuwwallen ten zuidoosten van Nijmegen. Dit stuwwallenplateau is vanouds begroeid met loofbossen, waarin prachtige rechthoekige "kamers" zijn uitgekapt. Deze bosontginningen langs de Meerwijkselaan dateren uit de 17e eeuw. Dit hoogstbeschermde landschap van het Rijk van Nijmegen stelt strenge eisen aan de bebouwing. De centrale as van het museum valt samen met de vista die vanaf Huize Oostermeerwijk loopt tot aan de Meerwijkselaan. Binnen het museum is er drie meter hoogteverschil over deze as. De massa's zijn in het talud geschoven, waardoor het museum van buitenaf maar half zo hoog lijkt. Vanaf de ene kant is de onderste laag bereikbaar en vanaf de andere zijde kom je binnen op de tweede laag, een voor Nederland uitzonderlijke gewaarwording. In afwijking van de eisen van het bestemmingsplan is gekozen voor een uitgestrekte layout van de plattegrond, om daarmee een te grote massaliteit te voorkomen. Hierdoor is een geheel ontstaan van bouwmassa's, afgewisseld met verbindende galerijen die uitzicht bieden op het buitenmuseum.

© Architectuur.ORG - 1999 - 2026 | info@architectuur.org | RSS-feed | Twitter | LinkedIn | Facebook